112m2 családi ház tervdokumentáció árazott tételes költségvetéssel

Digitális tartalom

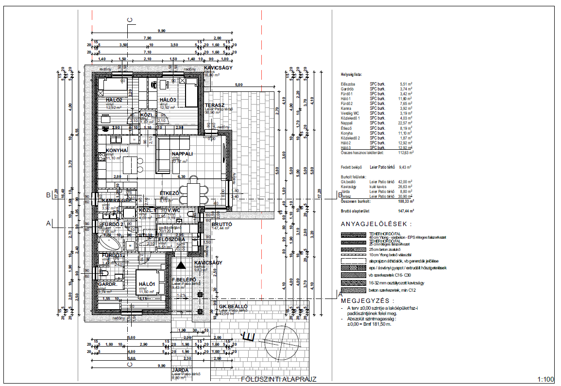
112 m²-es családi ház komplett tervdokumentációja részletes, tételes árazott költségvetéssel

Ez a csomag mindent tartalmaz, amire szükséged lehet álmaid otthonának megvalósításához. A 112 m² alapterületű családi házhoz készített komplett tervdokumentáció biztosítja, hogy az építkezés gördülékenyen, az előírásoknak megfelelően és a lehető legpontosabban valósuljon meg.

45 420 Ft

Mit tartalmaz a tervdokumentáció?

  1. Építészeti tervrajzok:

    • Alaprajzok részletes méretezéssel.
    • Homlokzati rajzok és metszetek, amelyek pontos képet adnak az épület arányairól és megjelenéséről.
    • Helyiségkimutatás a funkcionális elrendezés optimalizálásához.
  2. Műszaki leírások:

    • Az építkezéshez szükséges anyagok, technológiák és kivitelezési lépések részletes leírása.
    • Energiahatékonysági javaslatok a fenntarthatóság jegyében.
  3. Tételes árazott költségvetés:

    • Pontosan kiszámolt anyag- és munkadíj költségek.
    • Átlátható tételek, hogy pontosan lásd, mire mennyit kell költened.
    • Segítség a költségvetés optimalizálásában és a váratlan kiadások minimalizálásában.
  4. Engedélyezési dokumentáció:

    • A tervdokumentációt adaptálni kell az általad vásárolt telek méreteihez, beépítési szabályaihoz, ezt az ár nem tartalmazza.
  5. Tervrajzok digitális és nyomtatott formátumban:

    • A terveket és a dokumentumokat sikeres vásárlás után e-mailben PDF formátumban küldjük át. A költségvetés szerkeszthető excel formátumban kapod meg.
  6. Látványtervek:

    • Professzionális vizualizáció az épület megjelenéséről, amely segít elképzelni a végeredményt.

Az ár az alábbiakat tartalmazza:

  • Alaprajz
  • Metszetrajz
  • Homlokzati terv
  • Műszaki leírás
  • Látványtervek
  • Részletes költségvetés

Kinek ajánljuk?

Ez a dokumentáció ideális azok számára, akik egy modern, kényelmes és átgondolt elrendezésű 130 m²-es családi házat szeretnének építeni, és már az első lépéstől fogva biztosítani akarják a pontos tervezést és költségkezelést.

Ne hagyj semmit a véletlenre! Válaszd a professzionálisan kidolgozott tervdokumentációt, és építsd fel álmaid otthonát stresszmentesen!